Tvättstugan är ett klassiskt område för diskussion och där det kan finnas många olika uppfattningar om vad som är ordning och reda. Nedanstående gemensamma regler är till för att i största möjliga mån undvika detta.
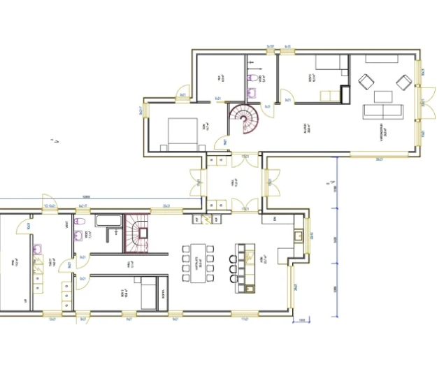
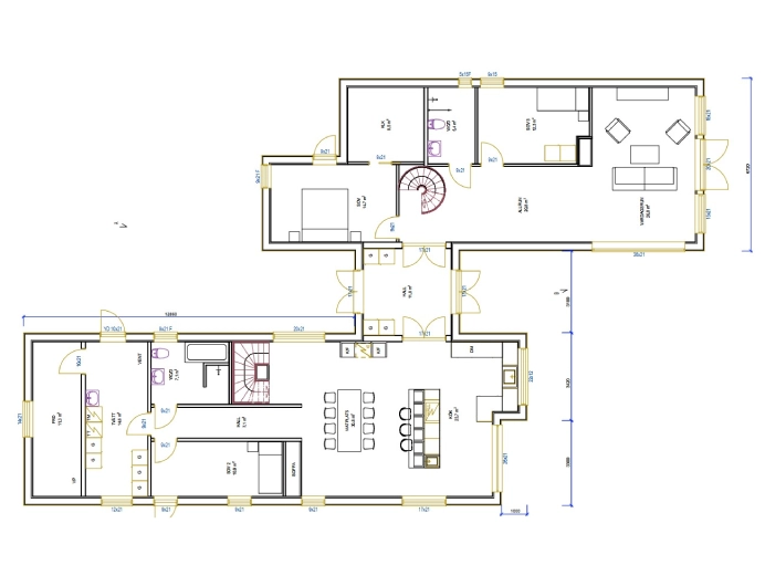
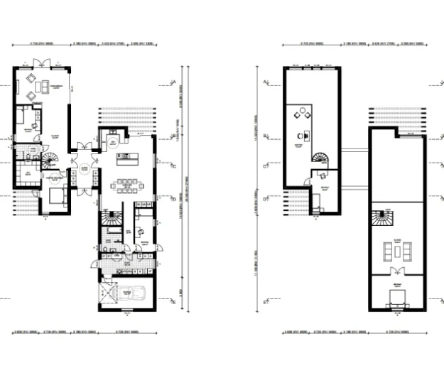
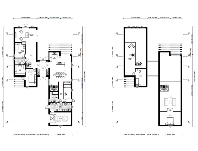
Arkitektritat enplanshus med fantastiska detaljer och noggrant utvalda materialval som skapar en unik karaktär och tidlös elegans. Varje del av huset är utformat med fokus på funktion, hållbarhet och estetik, vilket gör det till ett hem som både inspirerar och imponerar. De öppna ytorna, den genomtänkta planlösningen och samspelet mellan ljus och rymd bidrar till en modern och harmonisk livsmiljö. Projektet har fått stor uppmärksamhet och har till och med funnits med bland urvalen till det välkända TV-programmet Grand Designs Sverige, vilket understryker dess unika kvaliteter och visionära arkitektur.
Tvättstugan är ett klassiskt område för diskussion och där det kan finnas många olika uppfattningar om vad som är ordning och reda. Nedanstående gemensamma regler är till för att i största möjliga mån undvika detta.
1. Respektera både egna och andras bokningstider.
2. Låt bokningslåset sitta kvar tills tvätten är färdig. Så länge bokningslåset sitter kvar är tvättstugan reserverad för den som har bokat.
3. Om det finns lediga maskiner och man behöver tvätta, trots att någon annan har bokat tid, måste den som har bokat kontaktas. Denne har kanske blivit försenad. Adresslista med lägenhetsnummer finns på anslagstavlan i entrén.
4. Det är tillåtet att använda tvättstugan utan bokning om den är ledig, men var noga med att tvätten är klar innan nästa bokade tvättpass börjar. Använd alltid bokningslåset så att man vet vem som tvättar. (Märk ditt bokningslås med lägenhetsnummer om detta saknas.)
5. Torkskåp och torktumlare disponeras en halv timma efter ett tvättpass.
6. Tvättmaskiner skall tömmas senast vid tvättpassets slut, så att nästa bokande inte hindras att börja tvätta. Flytta bokningslåset till låsparkeringstavlan omedelbart efter avslutat tvättpass.
7. Det är absolut förbjudet för annan än den som bokat tid att avlägsna tvätt ur maskiner och torkskåp, så länge bokad tid löper.
8. Följ för övrigt de särskilda regler och anvisningar som finns för tvättmaskiner och torktumlare. Dessa regler finns uppsatta på väggen intill maskinerna.
9. Det är absolut förbjudet att tvätta mattor och liknande i tvättmaskinerna. Dessa maskiner är för vanligt tvättgods som kläder, sänglinnen och liknande.
10. Stäng fönster och lås dörren när tvättstugan lämnas.
11. Grovt smutsiga arbetskläder tvättas på arbetsplatsen.
12. Det är absolut förbjudetatt färga kläder i tvättmaskinerna.
13. Bygel-BH ska alltid tvättas och torkas i en tvättpåse för att undvika skador på maskinerna.
14. Rökning är förbjuden i tvättstugan.
15. Tvättstugan skall efter varje tvättpass städas av den som har tvättat, eftersom det inte finns någon annan som har till uppgift att städa. Torktumlarens luddfilter skall rengöras och golven – även i torkskåpsrum – skall sopas och våttorkas varje gång tvättstugan har använts. Tvättstugan skall lämnas i ett skick sådant som man själv vill finna den vid nästa tvättpass.
16. Var alltid rädd om lokaler och utrustning. Alla onödiga kostnader som uppstår drabbar alla hyresgäster genom höjda månadsavgifter eller minskat underhåll. Orsakar du skador kan du bli ersättningsskyldig.
17. Fel eller skador skall snarast anmälas till någon av oss fastighetsägare/fastighetsskötare.